本站
站群
网站首页
网站首页
新闻中心
政务公开
互动交流
办事服务
您当前所在位置:
首页
>
市自然资源和规划局
>
土地征收领域
>
征收土地预公告
索
引
号:
740892868/202510-00006
信息分类:
征收土地预公告
内容分类:
国土资源、能源
发布日期:
2025-10-17
发布机构:
市自然资源和规划局
文
号:
名
称:
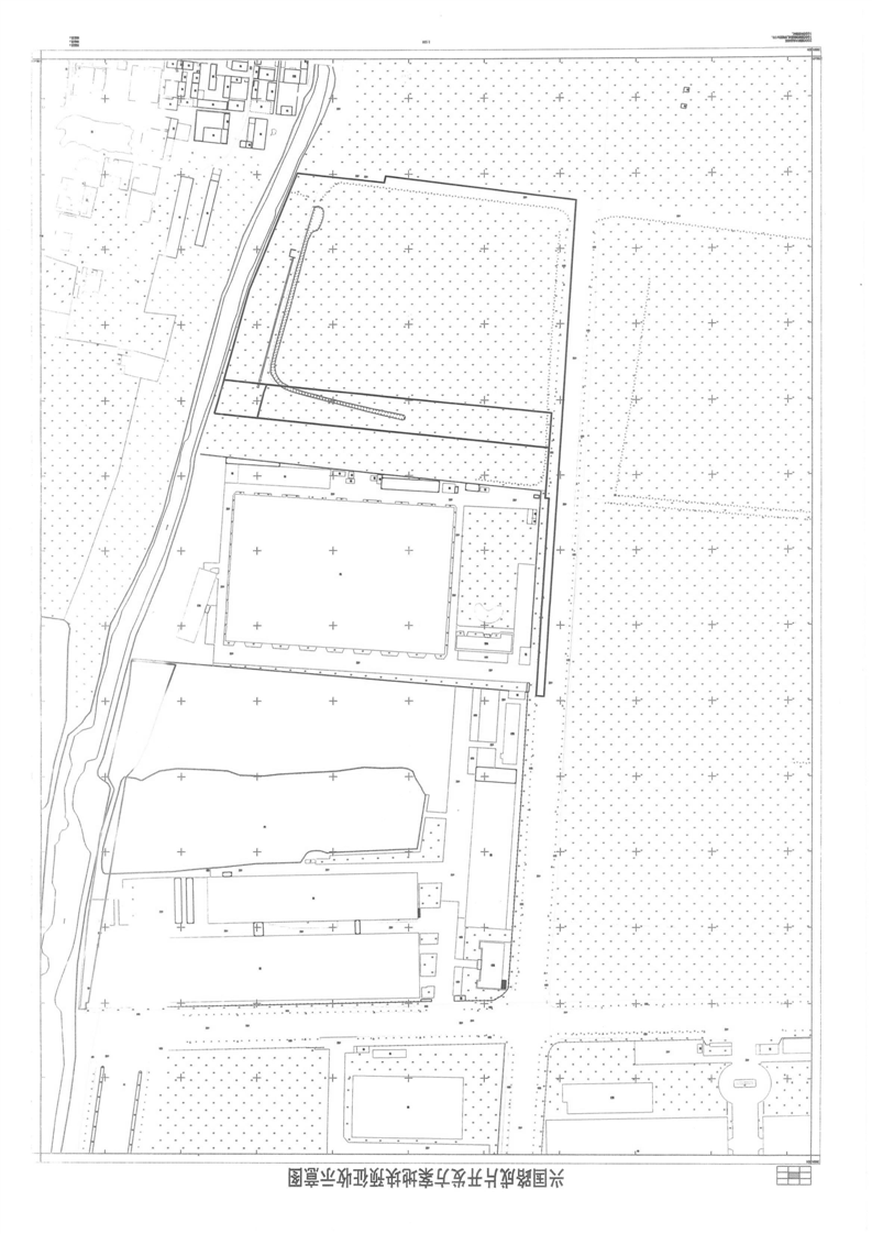
淮北市杜集区人民政府征收土地预公告(杜征预告〔2025〕8号)
关
键
词:
有效期至:
索
引
号:
740892868/202510-00006
信息分类:
征收土地预公告
内容分类:
国土资源、能源
发文日期:
2025-10-17
发布机构:
市自然资源和规划局
文
号:
关
键
词:
名
称:
淮北市杜集区人民政府征收土地预公告(杜征预告〔2025〕8号)
淮北市杜集区人民政府征收土地预公告(杜征预告〔2025〕8号)
浏览次数:
信息来源: 市自然资源和规划局
发布时间:2025-10-17 16:40
字号:
大
中
小
分享到: