本站
站群
网站首页
网站首页
新闻中心
政务公开
互动交流
办事服务
您当前所在位置:
首页
>
市自然资源和规划局
>
土地征收领域
>
征地补偿安置方案公告
索
引
号:
740892868/202510-00004
信息分类:
征地补偿安置方案公告
内容分类:
农业、林业、水利
发布日期:
2025-10-17
发布机构:
市自然资源和规划局
文
号:
名
称:
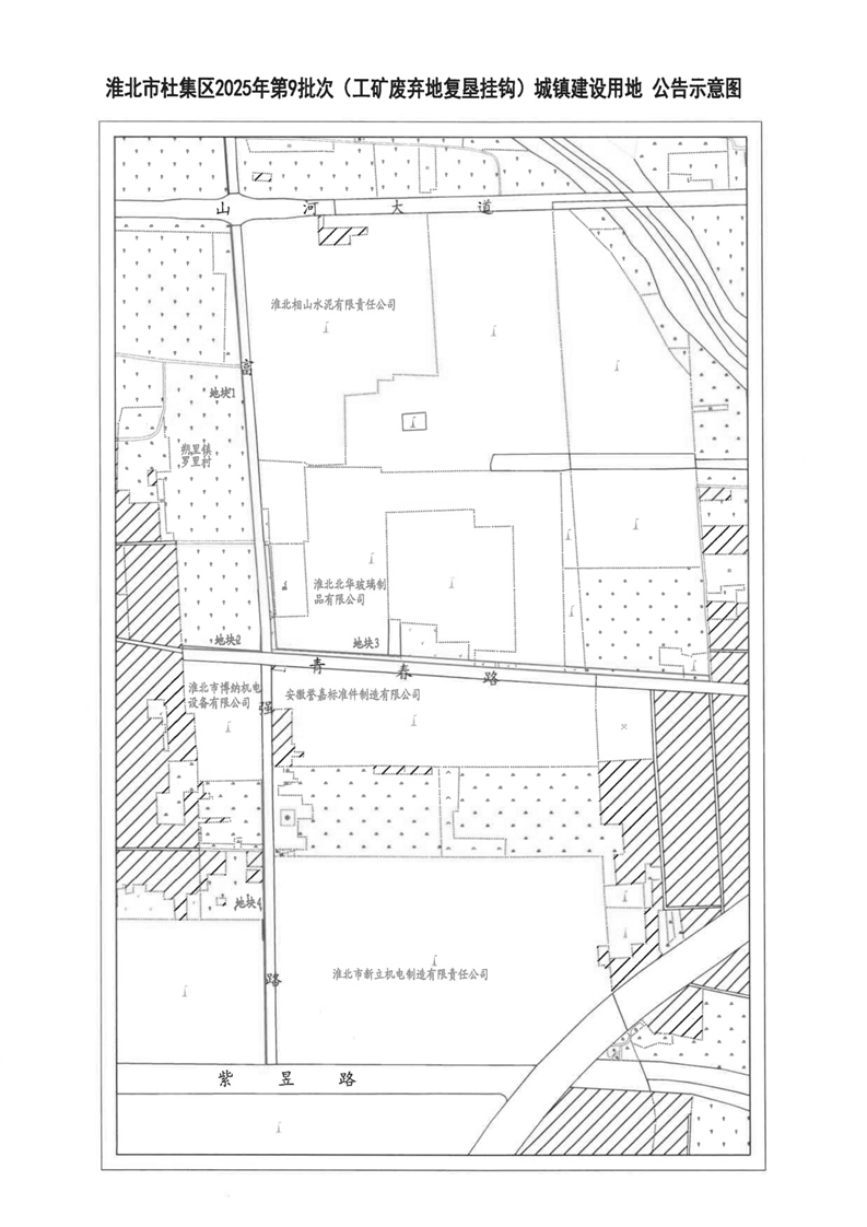
淮北市杜集区人民政府征地补偿安置方案公告杜征补安置〔2025〕3号
关
键
词:
有效期至:
索
引
号:
740892868/202510-00004
信息分类:
征地补偿安置方案公告
内容分类:
农业、林业、水利
发文日期:
2025-10-17
发布机构:
市自然资源和规划局
文
号:
关
键
词:
名
称:
淮北市杜集区人民政府征地补偿安置方案公告杜征补安置〔2025〕3号
淮北市杜集区人民政府征地补偿安置方案公告杜征补安置〔2025〕3号
浏览次数:
信息来源: 市自然资源和规划局
发布时间:2025-10-17 16:38
字号:
大
中
小
分享到: